ПРОЦЕСС: новое строительство
ТИПОЛОГИЯ: веранда
РАСПОЛОЖЕНИЕ: Екатеринбург
ПЕРИОДИЗАЦИЯ:
Проект: 2022
Реализация: на стадии реализации 2023
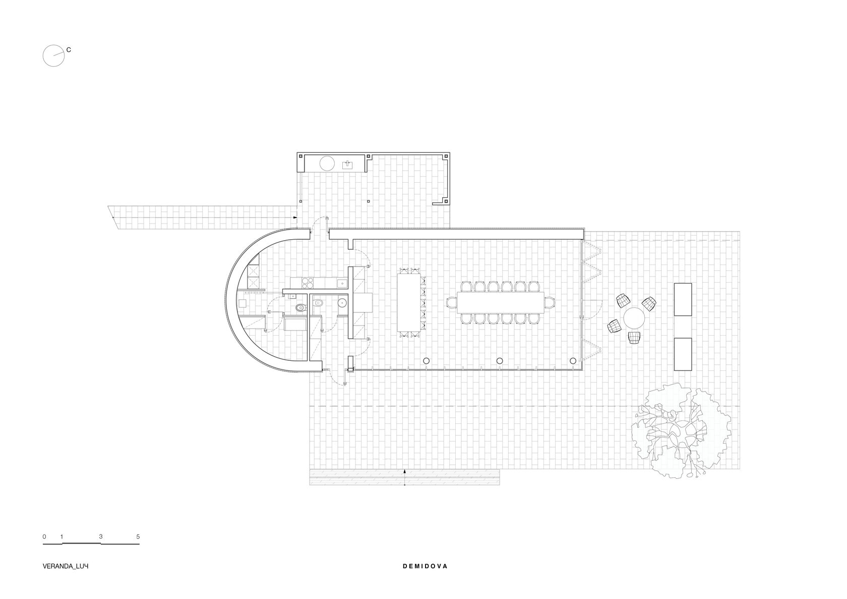
ОБЩАЯ ПЛОЩАДЬ: 87.3 м2
Веранда расположена на территории жилого частного поселка Луч, с видом на реку.
Функционально, строение будет использоваться как отдельная кухня с обеденный залом, в любое время года.
ПРОЦЕСС: новое строительство
ТИПОЛОГИЯ: веранда
РАСПОЛОЖЕНИЕ: Екатеринбург
ПЕРИОДИЗАЦИЯ:
Проект: 2022
Реализация: в стадии реализации 2023
ОБЩАЯ ПЛОЩАДЬ: 87.3 м2