ПРОЦЕСС: новое строительство
ТИПОЛОГИЯ: веранда
РАСПОЛОЖЕНИЕ: Екатеринбург
КОЛИЧЕСТВО ЖИЛЬЦОВ: 3
ПЕРИОДИЗАЦИЯ:
Проект: 2020
Реализация: 2020
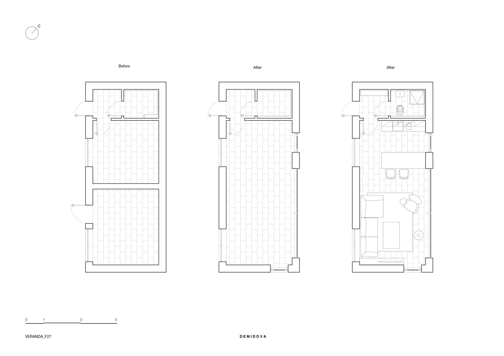
Данный объем был возведен на этапе реконструкции дома DOM_F27 в комплексе проекта по благоустройству внутренней территории. Объем, прямоугольной формы, с трех сторон был обшит ламелями из термодревесины, повторяющей отделку второго уровня жилого дома. Его предназначением служило хранение садового инвентаря для ухода за растениями и уборкой территории, а так же для отдыха садовников.
Со временем, у заказчик решил изменить функциональное назначение постройки на жилое пространство - летнюю веранду.
В ходе реконструкции была частично демонтирована кладка для установки витражных конструкций.
Внутри установили камин, организовали зоны кухни и отдыха.
ПРОЦЕСС: новое строительство
ТИПОЛОГИЯ: веранда
РАСПОЛОЖЕНИЕ: Екатеринбург
КОЛИЧЕСТВО ЖИЛЬЦОВ: 3
ПЕРИОДИЗАЦИЯ:
Проект: 2020
Реализация: 2020
Данный объем был возведен на этапе реконструкции дома DOM_F27 в комплексе проекта по благоустройству внутренней территории. Объем, прямоугольной формы, с трех сторон был обшит ламелями из термодревесины, повторяющей отделку второго уровня жилого дома. Его предназначением служило хранение садового инвентаря для ухода за растениями и уборкой территории, а так же для отдыха садовников.
Со временем, у заказчик решил изменить функциональное назначение постройки на жилое пространство - летнюю веранду.
В ходе реконструкции была частично демонтирована кладка для установки витражных конструкций.
Внутри установили камин, организовали зоны кухни и отдыха.
ХОД РЕКОНСТРУКЦИИ
 
  
  
 