В рабочем пространстве архитектора можно получить представление о взглядах и подходах проектирования. Интерьер архитектурного бюро DEMIDOVA подчинён функциональной логике и является воплощением тех приёмов и решений, которые применяются на практике.
 
Мастерская расположена в центре Екатеринбурга, в одном из корпусов жилого комплекса Второго дома советов. Конструктивистский комплекс в квартале улиц 8 Марта (ранее Троцкого), Антона Валека и Володарского построен в 1932 году по проекту архитекторов И. П. Антонова и В. Д. Соколова.
 
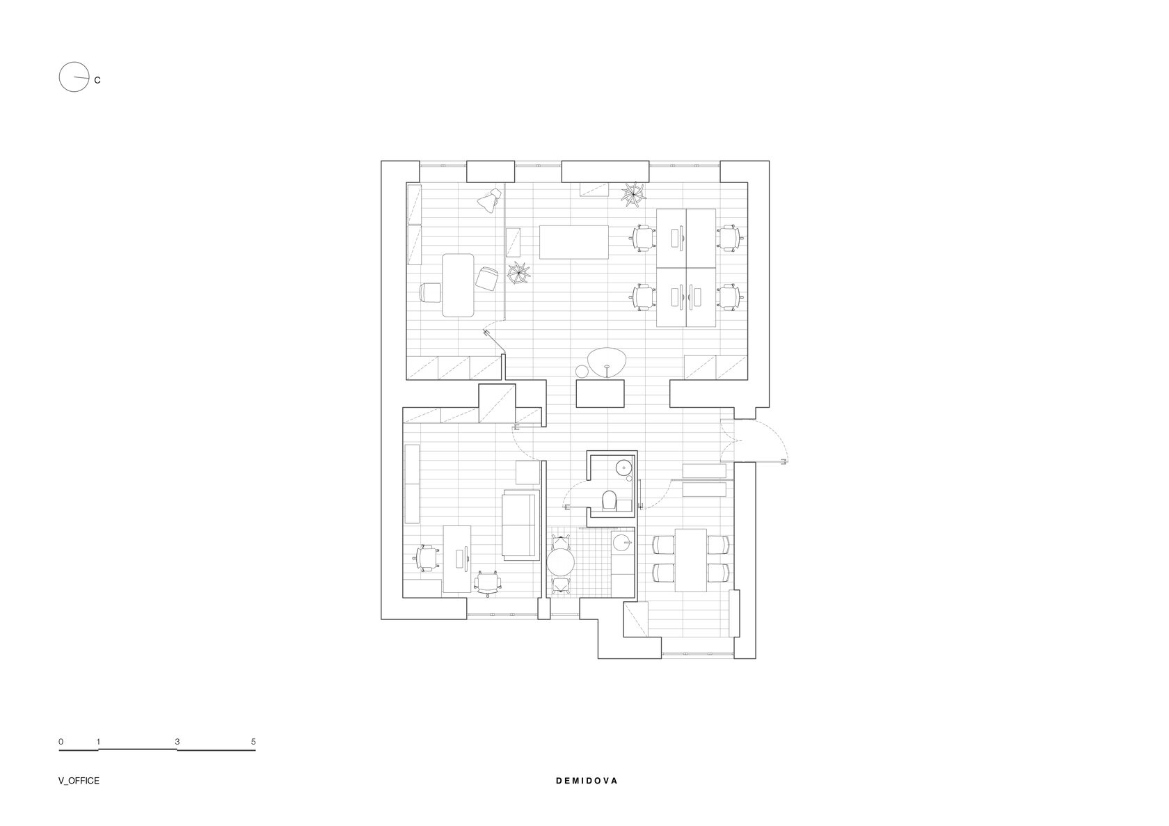
Бюро занимает помещение на первом этаже в четырехэтажном блоке Второго дома советов. Центральную часть мастерской формирует главное пространство — open space зона c экспозицией образцов материалов и обособленным рабочим местом главного архитектора бюро. По периметру устроены переговорная комната, кухня и дополнительный изолированный кабинет.
 
Чтобы открыть пространство, помещения разграничили стеклянными перегородками, быт перенесли в скрытые системы хранения. Сдержанный функциональный интерьер дополнен книгами, рабочими материалами, фотографиями реализованных объектов, предметами искусства и коллекционного дизайна.
 
В проекте удалось выделить несколько оригинальных элементов 30-х годов, сохранившихся после предыдущих владельцев помещения: тяжёлые деревянные распашные входные двери, чугунные радиаторы и оригинальную напольную плитку в пространстве, которое после реконструкции занимает кухня. Оригинальные элементы дополнены современной мебелью, сложным цветом стен, текстурой напольного покрытия, стеклом и подоконниками из натурального камня.