Интерьер городских апартаментов призван стать для своих владельцев местом, где можно отдохнуть от шума мегаполиса. Характер интерьера задан деталями: сложными цветами, фактурами материалов, предметами искусства и мебелью.
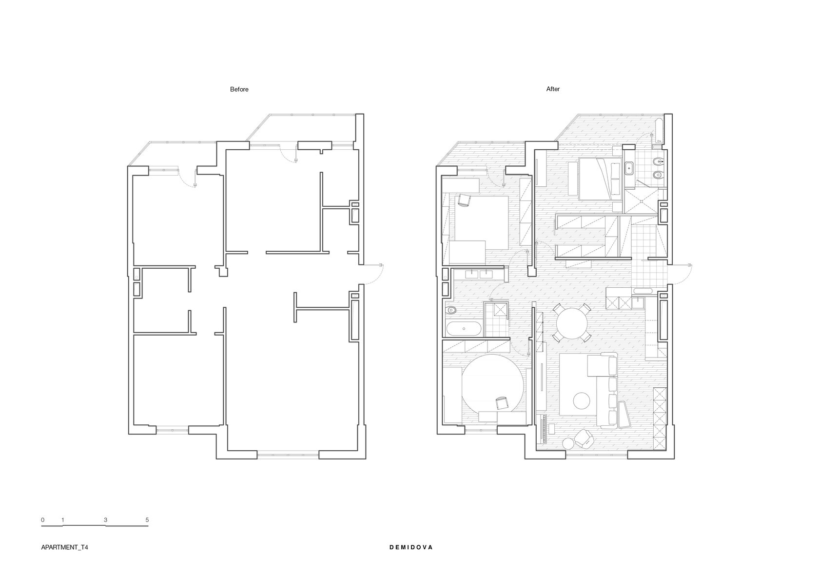
Перепланировка позволила создать общую зону, объединяющую кухню, столовую и гостиную. За счёт демонтажа стен лоджии удалось увеличить пространство и добавить больше естественного света в главную спальню с собственной ванной и гардеробной. Две детские спальни с отдельным санузлом расположили друг напротив друга.
Интерьер построен на сочетаниях цвета и фактур натуральных материалов: дерева, меди, камня, кожи, льна и шёлка. Светлая окраска стен позволяет вынести на передний план предметы мебели и искусства.
В стенах апартаментов собрана ценная коллекция произведений современных уральских авторов. В гостиной представлена работа Виктора Реутова. Скульптуры Андрея Антонова, работы Вениамина Степанова и Миши Брусиловского нашли своё место в светлой главной спальне. В ванной комнате разместили природную графику Вениамина Степанова.
Часть акцентов интерьера приходится на мебель, которую можно отнести к произведениям искусства. Обеденную зону освещает оригинальный медный светильник Artichoke Poul Henningsen из юбилейной коллекции датской марки Louis Poulsen. Под ним расположен стол Mesa Due Poltrona Frau простой геометрии с основанием, обтянутым натуральной кожей. Стол дополнен классическими стульями MHC.3 MISS итальянской фабрики Molteni&C.
В зоне гостиной, возле дивана, размещён журнальный столик D.555.1 производства той же фабрики. Стол с выкрашенным вручную геометричным основанием создан итальянским архитектором Джо Понти (Giò Ponti) в первой половине XX века.