ПРОЦЕСС: дизайн интерьера
ТИПОЛОГИЯ: квартира
РАСПОЛОЖЕНИЕ: Екатеринбург
КОЛИЧЕСТВО ЖИЛЬЦОВ: 3
ПЕРИОДИЗАЦИЯ:
Проект: 2020
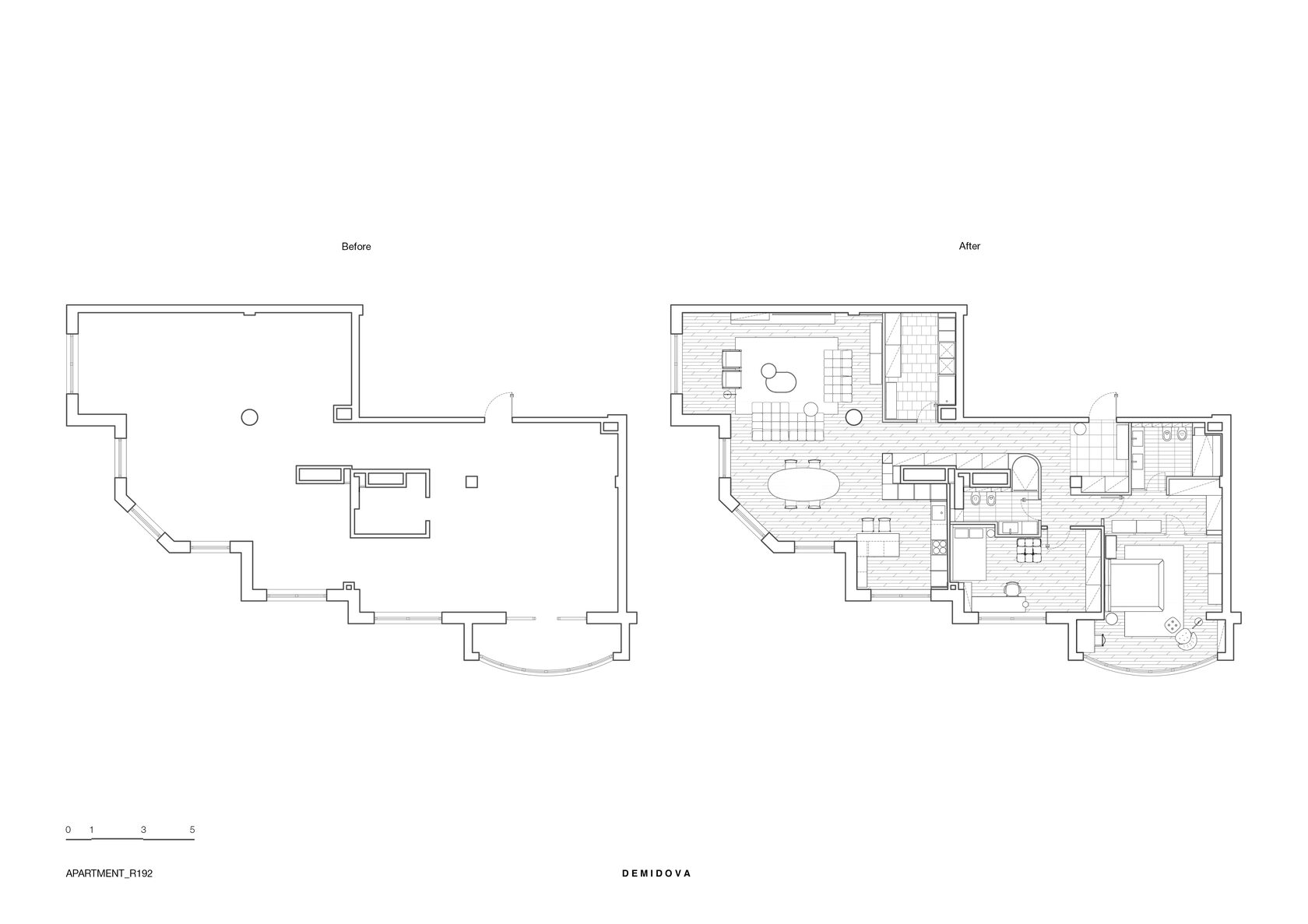
ОБЩАЯ ПЛОЩАДЬ 168.5 м2
Функциональное пространство квартиры построено на простых формах, природных оттенках и смысловых акцентах в предметах искусства, книгах и мебели.
В левой части апартаментов запроектированная общая зона с гостиной, кухней, столовой и отдельным бытовым помещением. Спальные комнаты сосредоточены отдельным блоком и отдалены от шума, который характерен для манипуляций в общей зоне.
ПРОЦЕСС: дизайн интерьера
ТИПОЛОГИЯ: квартира
РАСПОЛОЖЕНИЕ: Екатеринбург
КОЛИЧЕСТВО ЖИЛЬЦОВ: 3
ПЕРИОДИЗАЦИЯ:
Проект: 2020
ОБЩАЯ ПЛОЩАДЬ 168.5 м2
Функциональное пространство квартиры построено на простых формах, природных оттенках и смысловых акцентах в предметах искусства, книгах и мебели.