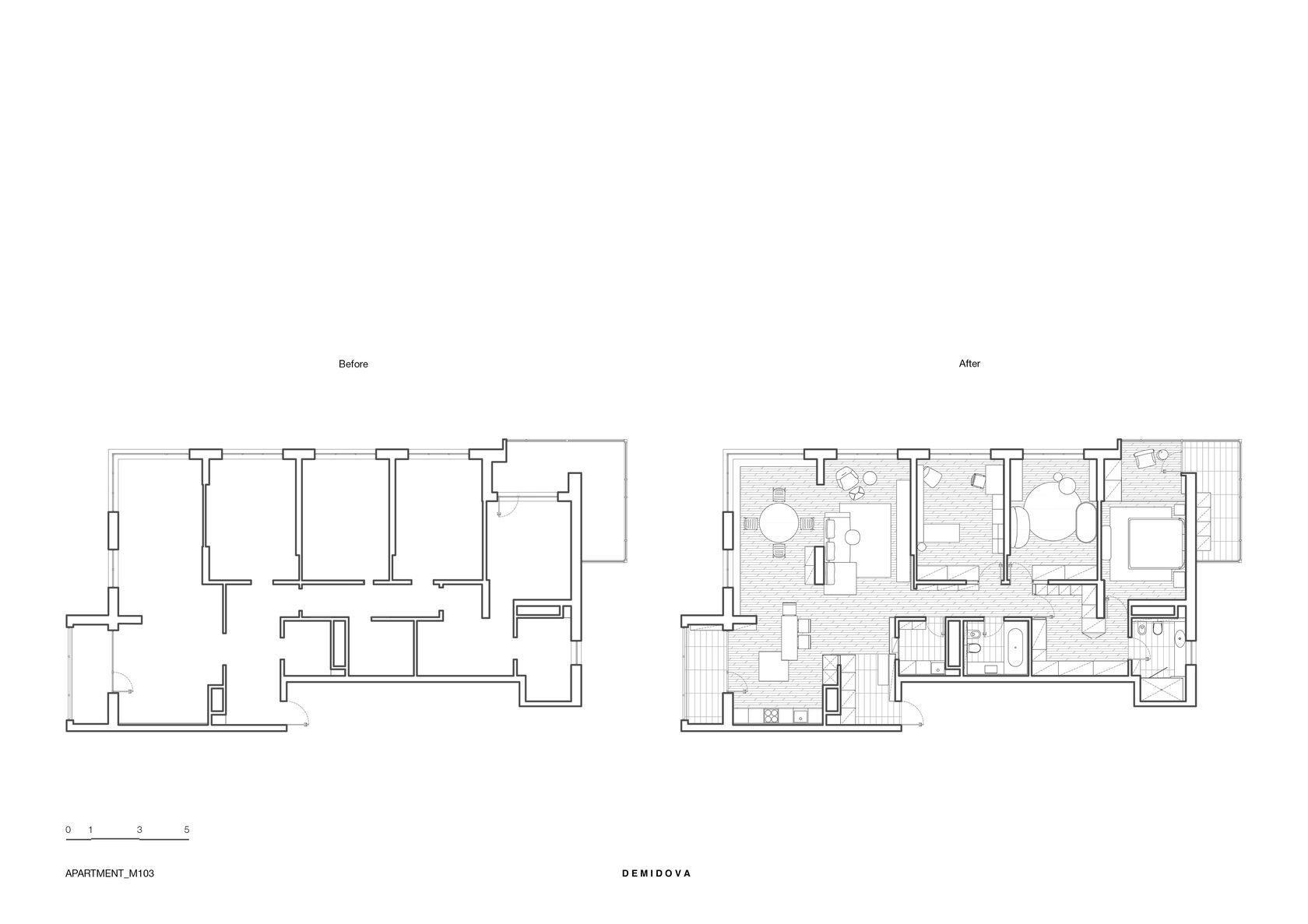
Интерьер сосредоточен на главном достоинстве апартаментов — городской панораме, открывающейся из больших окон, выходящих на три стороны света. Чтобы открыть вид и вывести его на первый план, архитекторы проекта изменили планировку пространства: убрали часть перегородок и избавились от одной комнаты. Это помогло увеличить пространство кухни-гостиной и организовать скрытые хозяйственные зоны. Семья заказчиков готовилась к рождению второго ребёнка, поэтому в апартаментах выделили две детские комнаты и уединённую главную спальню для родителей.
В оформлении большого пространства апартаментов использован принцип «коробочки»: потолок и стены отделаны штукатуркой одного цвета с неоднородной фактурой, деревянный паркет и шпонированные элементы мебели подобрали близкого оттенка. Такое решение позволяет растворить границы пространства и наполнить его мягким естественным светом, проникающим сквозь большие окна. Акценты расставляли аккуратно: разнообразие текстур обеспечивают натуральный мрамор и дерево, за яркость деталей отвечает мебель — графитовые фасады кухни, вишнёвые и горчичные жёлтые стулья.
Главное пространство — объединённая зона гостиной, столовой и кухни — обращено в сторону реки и делового центра Екатеринбурга. Большие угловые окна объединили длинным подоконником светлого дерева, на который можно присесть и насладиться видом на город. Под подоконником организовали открытые полки для книг и ценных вещей. Открытые после перепланировки несущие элементы скрыли за шкафами: со стороны столовой здесь удобно хранить посуду и кухонную утварь.
В противоположной от гостиной части апартаментов расположена главная спальня с небольшим балконом и ванной с окном. Вход в спальню организован через большую гардеробную комнату — такое решение позволяет изолировать пространство от двух детских.
Чтобы поддерживать порядок было проще, в апартаментах предусмотрено множество скрытых систем хранения, выделено помещение постирочной. Для дорогих хозяевам предметов декора, деталей и книг предусмотрено несколько открытых полок. Пространство наполняет живопись: в гостиной разместили холст Владимира Наседкина «Обнажённая Х», расставили небольшие акценты с помощью графики уральских художников.