Апартаменты для двоих с видом на реку и исторический центр Екатеринбурга открыты естественному свету и избавлены от декоративных элементов — предпочтение отдано простым формам и природным оттенкам. При этом пространство не воспринимается однообразным: спокойные решения становятся фоном для выразительных натуральных материалов с богатой фактурой, предметов мебели и искусства.
Внешний облик комплекса, в котором расположены апартаменты, повлиял на интерьерные решения. Лоджии здания облицованы панелями с текстурой под дерево, поэтому для отделки внутреннего пространства выбран натуральный тик, повторяющий оттенок элементов фасада. Деревянными панелями оформлены оконные проёмы, часть стен, потолка, санузлов и коридора.
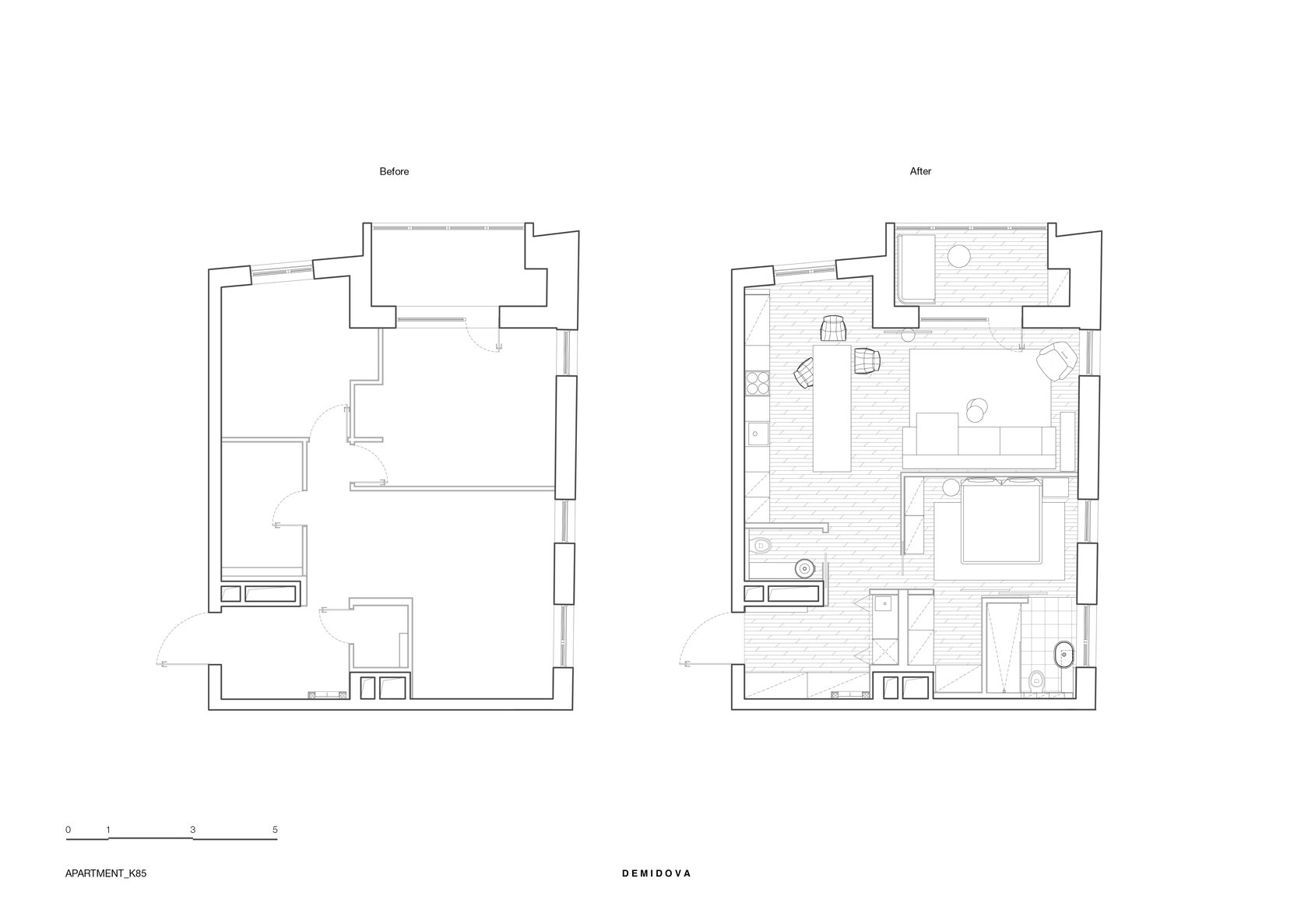
Пространство организовано таким образом, чтобы из всех зон открывался вид на городской пейзаж. В апартаментах сформировано два основных блока. Первый — совмещённое пространство кухни и гостиной с выходом на балкон. Центральным акцентом апартаментов стала кухня глубокого серого цвета в сочетании с рыже-голубым бразильским мрамором и тиковыми элементами.
Второй блок — мастер-спальня с гардеробной и ванной комнатой. Небольшую по площади зону удалось визуально расширить и сделать максимально функциональной. Светлую спальню отделили от санузла и гардеробной трансформируемой реечной перегородкой из тика.
В прихожей разместили скрытую систему хранения, прачечную с раковиной, стиральную и сушильную машины. Для экономии пространства в апартаментах установлены межкомнатные двери, задвигающиеся внутрь перегородок.
Заказчик интересуется современным искусством, в особенности творчеством уральских авторов. Поэтому еще на первых этапах работы над проектом была подобрана картина екатеринбургского художника Анатолия Калашникова «Корпоратив». Также акцентами в интерьере стали графика Виталия Воловича, скульптуры Андрея Антонова и живопись Миши Брусиловского.